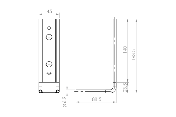
Horizontal control gap tie for brick and block work. This tie will retain masonry integrity against lateral wind loads, sleeves will absorb differential movement.
- Clay brick / block work
- Tested to a control gap of 40mm
- Universal applications
- Australian design & tested AS/NZS 2699.2:2020
Fixing requirements
- Fixed with approved fasteners, contact us with your project requirements.
Corrosion Characteristics
- R2 - Galvanised Z600
- R3 - Hot dipped galvanising
- R4 - Stainless steel 316L